

Budynek D2 przy ulicy Winnej 22B – z jedną klatką schodową wyposażoną w dźwig osobowy – pięć kondygnacji mieszkalnych oraz nadbudówka ponad dachem z pomieszczeniami technicznymi.
Rozpoczęcie budowy: marzec 2024 roku
Zakończenie: czerwiec 2025 roku
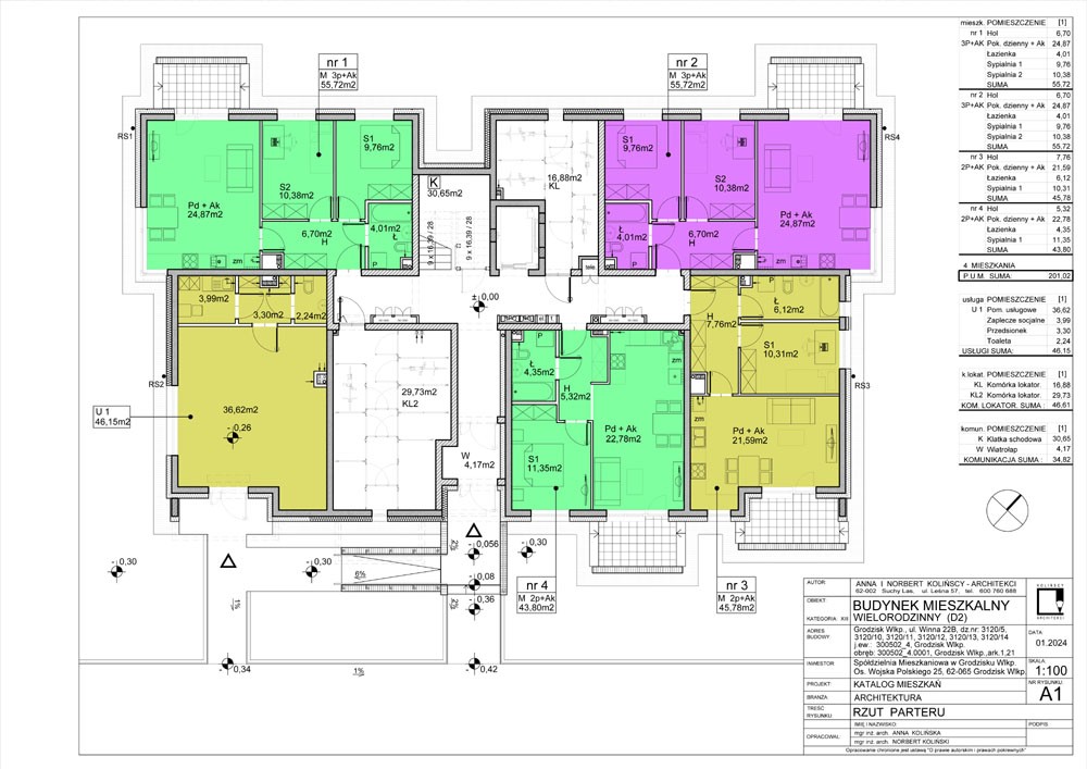
W budynku będzie się znajdować 28 mieszkań 2- i 3-pokojowych o powierzchni użytkowej od 43,32 do 55,72 m2 oraz jeden lokal usługowy. Do każdego mieszkania przypisana jest dodatkowo komórka lokatorska o powierzchni ok. 2 m2. W klatce schodowej znajdować się będzie także suszarnia i boks na wózki/rowery.
Budynek zaprojektowany wg najnowszych standardów - mieszkania wyposażone we wszystkie instalacje techniczne, centralna dostawa ciepła i ciepłej wody z kotłowni umieszczonej w nadbudówce ponad dachem, w pobliżu której dodatkowo zlokalizowana będzie instalacja paneli fotowoltaicznych i pompa ciepła wspomagająca produkcję ciepła dla potrzeb obiektu.
Mieszkania będą realizowane z prawem odrębnej własności lokalu.
Cena 1 m2 powierzchni użytkowej mieszkania wynosi 6.750 zł.
Zestawienie dostępnych mieszkań wraz z rzutami poszczególnych kondygnacji i kartami lokali znajdą Państwo poniżej.
Osoby zainteresowane prosimy o kontakt z Działem Członkowskim Spółdzielni - nr telefonu: (61) 44 46 033, e-mail: smgrodzisk@smgrodzisk.wlkp.pl





